Tervezés
- Épületek központi fűtő-hűtő rendszerek
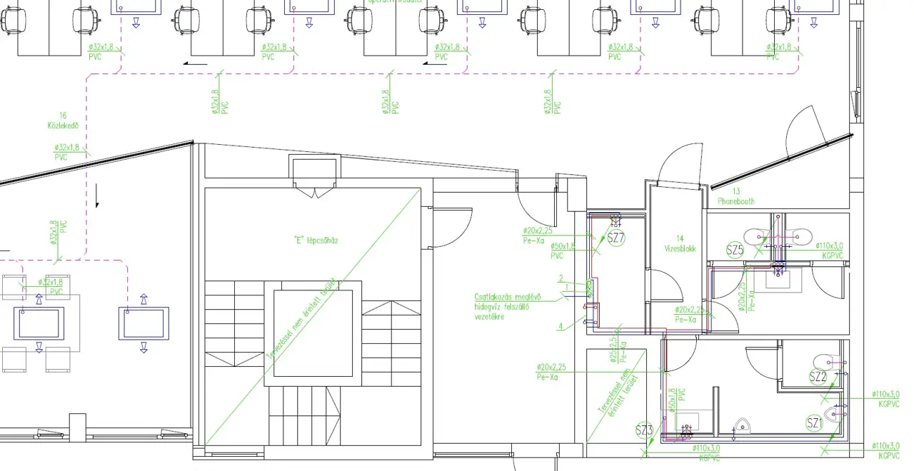
- Vízellátás–Csatornázás
- Gázellátás
- Légtechnikai rendszerek tervezése
Komplex, energiahatékony gépészeti megoldások lakó-, ipari és középületekhez. Tervezés és épületenergetikai tanúsítás egy kézből.
2020 óta foglalkozom lakó és középületek épületgépészeti tervezésével, valamint 2024 óta épületenergetikai tanúsítással.
Kiviteli és engedélyezési tervek készítése.
Energetikai tanúsítványok és számítások.
Tervezői művezetés, megvalósulási dokumentáció.
Lakó és nem lakóépületek energetikai tanúsítása adás-vételhez, pályázathoz, használatbavételhez.
HVAC (VRF) Hűtő‑Fűtő rendszer tervezése, Budapest
Engedélyezési terv épületgépészeti dokumentációja, teljes épületgépészet kiviteli tervezése, Közművek engedélyeztetése, Gyula
Teljes épületgépészet felületfűtő-hűtő központi hőszivattyús rendszerrel, Budapest
Írjon pár mondatot a feladatról (épülettípus, helyszín, tervezési fázis), és 3 munkanapon belül válaszolok.
Szolgáltató/üzemeltető: Czigléczki János (CJ Engineering)
Kapcsolat: cigi0731@gmail.com • +36 30 587 2221
Adószám: 54537934-1-24
Szakmai névjegyzék: Magyar Mérnöki Kamara – ID: 68735
Domain: cjeng.hu
Adatkezelő: Czigléczki János (CJ Engineering), elérhetőség: lásd fent.
Kezelt adatok: név, e‑mail cím, az üzenet tartalma (ajánlatkérés céljából).
Adatkezelés célja és jogalapja: kapcsolatfelvétel, ajánlatadás és teljesítés előkészítése (GDPR 6. cikk (1) bekezdés b) és f)).
Megőrzési idő: legfeljebb 12 hónap, vagy az érintetti törlési kérelemig/az ügy lezárásáig.
Adatfeldolgozók: tárhelyszolgáltató és e‑mail szolgáltató (Gmail). Személyes adatokat harmadik országba kifejezetten nem továbbítok.
Érintetti jogok: hozzáférés, helyesbítés, törlés („elfeledtetés”), adatkezelés korlátozása, adathordozhatóság, tiltakozás. Panasz tehető a Nemzeti Adatvédelmi és Információszabadság Hatóságnál.
Sütik: az oldal csak a működéshez szükséges (esszenciális) sütiket használ; statisztikai/marketing követés nincs.
Jelen összefoglaló tájékoztató jellegű. Teljes körű információért keressen a fenti elérhetőségeken.